

SL型十字滑塊聯軸器 特點及應用場合:不能緩沖、減振、徑向尺寸小、轉動慣量小.適月于轉矩較小,載荷變化不大,無劇烈沖擊的兩軸聯接

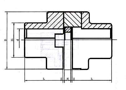
SL型十字滑塊聯軸器的參數及主要尺寸:(Q/ZY 03-2001) mm

十字滑塊連軸器又名金屬滑塊連軸器,其滑塊呈圓環形,用鋼或合金制成,適用于轉速較低,傳遞轉矩較大的傳動。
十字滑塊連軸器由兩個在端面上開有凹槽的半連軸器和一個兩面帶有凸牙的中間盤組成。因凸牙可在凹槽中滑動,故可補償安裝及運轉時兩軸間的相對位移。
十字滑塊連軸器零件的材料可用45鋼,工作表面需要進行熱處理,以提高其硬度;要求較低時也可用Q275鋼,不進行熱處理。為了減少摩擦及磨損,使用時應從中間盤的油孔中注油進行潤滑。
因為半連軸器與中間盤組成移動副,不能發生相對轉動,故主動軸與從動軸的角速度應相等。但在兩軸間有相對位移的情況下工作時,中間盤就會產生很大的離心力,從而增大動載荷及磨損。因此選用時應注意其工作轉速不得大于規定值。
十字滑塊連軸器一般用于轉速n<250r/min,軸的剛度較大,且無劇烈沖擊處。

公司生產地址:江蘇省鎮江市高新技術開發園區68號
銷售中心地址:江蘇省鎮江丁卯開發區智慧大道668號705室
手機:孫女士 18952800101
QQ:1991897647
電話:0511-85788529
傳真:0511-85019680(自動接收)
企業郵箱:sales@lzqgs.cn
Copyright ? 鎮江海誠機械制造有限公司 版權所有 技術支持:江蘇易潤
專業生產:雨水收集系統 | 彈性聯軸器 | 彈性柱銷聯軸器 | 彈性星型聯軸器 | 梅花形彈性聯軸器 | 中間軸柱銷齒式聯軸器